Learn to build your own tiny house in 2026! View our new Tiny House Workshop dates and locations.

This listing 'Highly Efficient Newly Built Tiny Homes with Appliances Included' has expired. While you can still view the listing, you are not able to contact the seller through the Tiny House Marketplace.

Highly Efficient Newly Built Tiny Homes with Appliances Included Premium

+14 photos
+13 photos
$69,000.00
Reduced
You cannot contact the seller of this listing because it has expired.
Tiny House on a Foundation
1 beds - 1 baths
For Sale
New
Built in 2025
340 sq ft
No Land

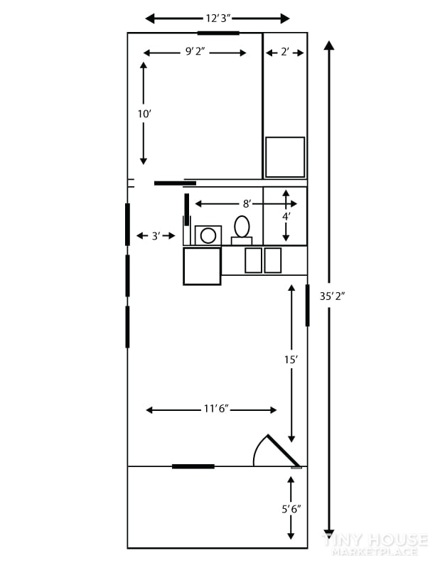
Step into a tiny home that proves small can still mean spacious, comfortable, and secure. Designed with modern living in mind, this home includes all the essentials you’d expect in a traditional house: a washer and dryer combo, full-size refrigerator, electric stove, convection oven, and even a dishwasher. Central heating and air conditioning keep the home comfortable year-round, while energy efficiency is maximized through spray foam insulation that keeps utility costs low and comfort levels high. Thoughtful details like optional TV hookups make it easy to add personal touches. Safety and peace of mind are built in with three exterior cameras, including a smart doorbell camera, so you can always feel secure. Every inch of this home is carefully designed to feel open and livable, offering a balance of simplicity and convenience. Whether you’re looking for a primary residence, a weekend getaway, or a flexible space for family and guests, this tiny home is built to deliver the modern amenities you want with the efficiency you need.

13 Saves | 3,364 Views | Report this Listing

Features
Storage Loft
Sleeping Loft
Laundry
Covered Porch
Deck
Contact Us