Escape Boho Vista XL 2020, PERFECT THOW Featured

12th Ave SE Naples, Florida 34117
+19 photos
+18 photos
$49,000.00
OBO
Listed by Sara C on 10/21/2025
Tiny House on a Trailer
1 beds - 1 baths
For Sale
Pre-Owned
Built in 2020
213 sq ft
No Land

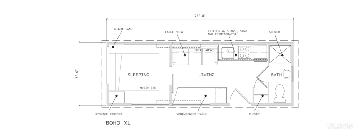
This like-NEW Escape Boho Vista XL THOW (tiny house on wheels) was ordered at the end of 2020 for delivery in early 2021 at the tail end of Covid. We bought in case the pandemic went a second round, as we did not wish to have the entire family crammed under one roof again. Thankfully we did not need it. The house has been attended to daily, impeccably kept and maintained with water and electrical checks and annual application of siding sealant. The interior is stabilized with climate control cooling and heating. Everything is original except for factory installed upgrades at time of purchase. These include HE Split System, sliding barn (bedroom) door, custom frosted glass bathroom door, flip solid block dining table, induction cooktop (tested, never used), flawless maple cabinets, butcher block countertops, XL bedroom windows, and more. It still smells of newly installed wood! Though we have unit connected to electric and septic systems, it is solar-ready should new owner desire such an upgrade. New units of this model have average cost of $74,000 (Boho XL base price is $59,720). This one is in Naples, Florida. Tires, jacks, hitch all perfect. Manuals and original documentation from purchase will be included. Current deck is not directly attached to home. House is fully travel ready to your property or your next adventure. * Custom trailer, steel floor joists w/rust resistant coating, insulation, rodent resistant steel underbelly, radial tires, wt. rated axles, safety hitch, 2 5/16” ball, leveling jacks, DOT lighting, 2–20-gallon LP tank system with cover * 2x4 16” OC walls, EcoRoll GREENGUARD Gold certified insulation * 30A/120v power center 100 AH battery backup power * Low-E, Thermopane windows & all factory window coverings * Vertical T&G siding in cedar lap stain finish with aluminum trim * Metal roof with 40-year warranty * On demand water heater * Upgraded from Vista's base package for the A/C heat pump split system

2 Saves | 577 Views | Report this Listing

Location
12th Ave SE Naples, Florida 34117 View on Google Maps
Contact Us