Champion Park Model w/ Loft (Flood-Salvage) – $42k as-is Pro

Hostetter Rd Manheim, Pennsylvania 17545
+5 photos
+4 photos
$42,800.00
Make Offer
Listed by Oasis Tiny Estates on 08/21/2024
Tiny House on a Trailer
1 beds - 1 baths
For Sale
New
Built in 2024
399 sq ft
No Land

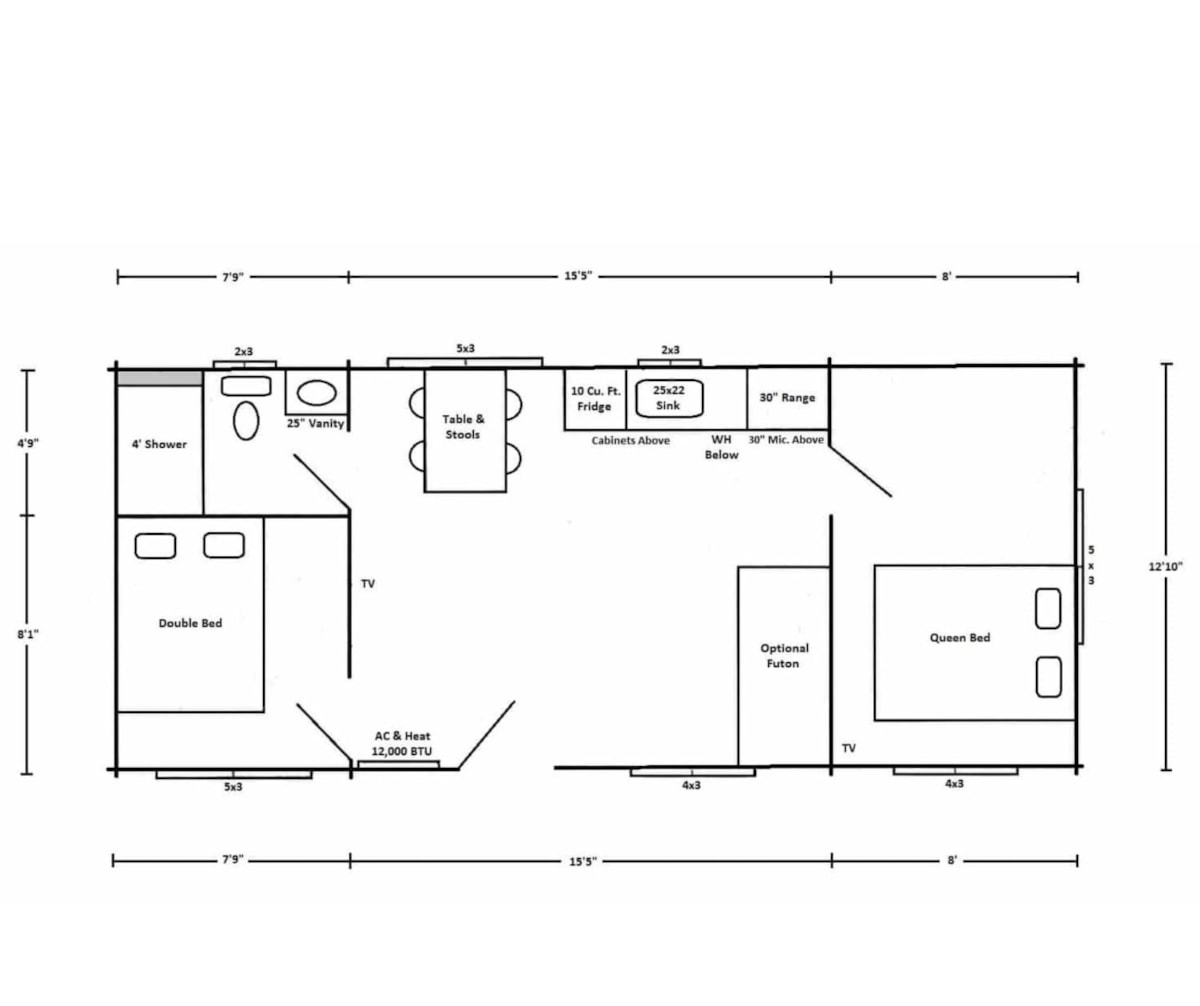
On July 1 2025 a flash flood put about three feet of water inside this brand-new Champion park-model (loft version) while it was still on our sales lot. The unit has never been occupied, but no professional remediation has been done. Floors are surface-dry; under-belly insulation is still damp. This unit is sold strictly AS-IS. Why It’s a Deal - 400-sq-ft shell already framed, wired, and sided – roof & chassis unharmed. - New, turnkey Champions spec like this retail $75k or more. - Perfect for contractors, flippers, campground owners who will install new sub-floor, insulation, and lower cabinets themselves. Key Features: - Size: 42' 10" x 12' = 400 sq. ft. - 1 Bedroom, 1 Bathroom, Full Kitchen, Porch, Loft - RVIA Seal, built to ANSI A119.5 standards - R-22 Roof Insulation and R-22 Floor Insulation Exterior: - Durable 25-year 3-tab shingles for long-lasting protection. - DBL 5 vinyl siding for low maintenance and a sleek appearance. - Exterior house wrap for additional insulation. - Vinyl patio door with grids and Low-E glass for energy efficiency and style. - 8' Porch with TimberTech vinyl railing for a beautiful and durable outdoor space. Included Appliances: - 30" Electric Range (Stainless Steel), 16 CF Refrigerator (Stainless Steel), and 1.7 Range Hood Microwave (Stainless Steel). - Garbage disposal for added convenience in your kitchen. Message for any questions, extra photos, or to schedule an on-site or live-video tour. Again, this unit is being sold as-is.

25 Saves | 20,268 Views | Report this Listing

Location
Hostetter Rd Manheim, Pennsylvania 17545 View on Google Maps
Contact Us